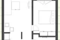
2 room apartment 39 m² in Warsaw, Poland

Warsaw, Poland
3,500 zł
per month
Posted at: 1/10/26
Updated at: 1/14/26
Location
Country: Poland
State: Masovian Voivodeship
City: Warsaw
Street: Szulborska
Property parameters
Year built: 2008
Rooms: 2
Total area: 39 m²
Description

Na wynajem!

New building location
Warsaw, Poland

Mortgage calculator

Interest rate, %
Loan term, years
Property cost
Down payment, %
{{ initialPaymentCurrency }} PLN
Please note! You changed the property cost parameter to {{ differentPrice }}%. This affects the relevance of the calculation of monthly payments for the current property. Return
Interest rate
{{ loanPercentValue.toLocaleString() }} %
Interest rate
Loan amount
{{ mortgageAmount }} PLN
Loan amount
Period
{{ loanPeriodValue | pluralize("year", "years") }}
Period
Monthly payment
{{ paymentPerMonth }} PLN
Monthly payment